Global Ankat

Oportunidad Única: Terreno Rústico con Proyecto de Lujo en Felanitx (Ref. TR2039)

600.000€
Referencia
TR2039
18061
m.²
4
Habitaciones
4
Baños

https://youtube.com/shorts/FF1Hguxvt8s?feature=share

Descubra esta joya en Felanitx: una impresionante parcela de 18.061m² de suelo rústico que no solo ofrece un espacio generoso, sino que viene con un proyecto para una exclusiva vivienda unifamiliar aislada con piscina.

Este terreno destaca por su inmejorable localización, garantizando la paz del entorno rural sin renunciar a la comodidad de los servicios:

  • A tan solo 10 minutos en coche del centro de Felanitx, uno de los municipios con más encanto de Mallorca, conocido por su vibrante mercado, gastronomía local y proximidad a las calas del levante.

  • El acceso directo a la parcela se realiza a través de un camino público, lo que asegura una entrada cómoda y perfectamente establecida.

La gran ventaja de esta inversión es que elimina la incertidumbre de la planificación. Adquirirá un terreno con un proyecto de Vivienda Unifamiliar Aislada con Piscina ya presentado, cuya licencia municipal estará lista a finales de este año 2025 (proyecto presentado en 2018).

Ventajas clave de la compra:

  1. Ahorro de Tiempo y Tranquilidad: La tramitación de licencias, a menudo el proceso más largo y complejo, está finalizando, lo que le permitirá empezar la construcción de su sueño a principios del próximo año.

  2. Infraestructura Esencial Garantizada: Se ha solicitado ya el pozo de agua, un paso crucial y a menudo costoso en suelo rústico, asegurando el suministro hídrico para la futura propiedad y jardín.

  3. Compromiso con la Sostenibilidad: El diseño arquitectónico incluye la implementación de placas solares, proyectando una vivienda moderna, eficiente energéticamente y con bajos costes de mantenimiento a largo plazo.

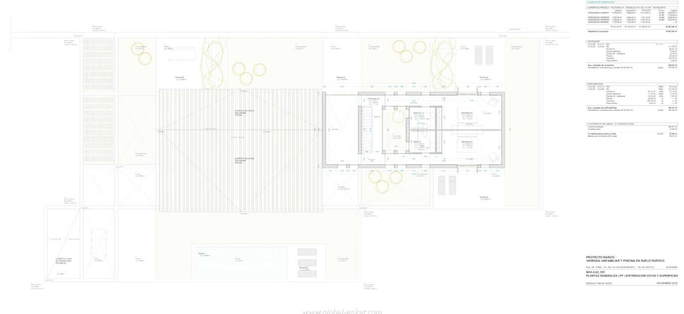
El proyecto detalla una residencia de dos plantas (Planta Baja y Planta Piso) con una distribución funcional y luminosa, enfocada en el bienestar y el disfrute del paisaje:

Planta Baja (PB): El Corazón de la Casa.- El diseño prioriza la luz natural y la conexión con el exterior, con un hall de entrada central que distribuye elegantemente las estancias:

  • Zona Social: Amplio salón, cocina-comedor y espacios de transición diseñados para la ventilación cruzada (con huecos en dos o más fachadas), ideales para el clima mediterráneo. La cocina-comedor está estratégicamente ubicada en la zona noreste y conecta con la coladuría y un aseo de cortesía.

  • Descanso: Dos dormitorios dobles con su respectivo baño en-suite, ofreciendo máxima privacidad y comodidad.

Planta Piso (PP): Máxima Privacidad

  • Consta de dos dormitorios dobles adicionales, cada uno con su propio baño en-suite y vestidor, orientados a la soleada orientación sureste para aprovechar al máximo la luz.

Exterior y Paisaje: La imponente fachada alcanza una altura total de 7.64 m. La piscina se integra perfectamente en el diseño, ubicada justo a continuación del porche, creando una zona de ocio exterior ideal para disfrutar del clima mallorquín.

En resumen, esta es una oportunidad única para invertir en un amplio terreno rústico con la seguridad de un proyecto de construcción avanzado, sostenible y de diseño superior, a un paso de todas las comodidades de Felanitx.

Estado
Necesita reforma
Ubicación
Las afueras
Vistas
A la montaña
m² Parcela
18061
Extras
Aseo, Lavandería, No amueblado, Patio, Terraza, Zonas verdes, Jardín, Piscina, 2 plantas, Pozo
Certificado energético
En trámite


Global Ankat

Revisiones (0)
Global Ankat
Plaça Pax, 24, local 2, 07200 Felanitx, Mallorca





    Esta web usa Cookies para mejorar tu experiencia de usuario. We are committed to protecting your privacy and ensuring your data is handled in compliance with the General Data Protection Regulation (GDPR).