Global Ankat

Oportunidad Única: Terreno Rústico con Proyecto en Son Artigues (Porreres) (Ref. TR2040)

295.000€
Referencia
TR2040
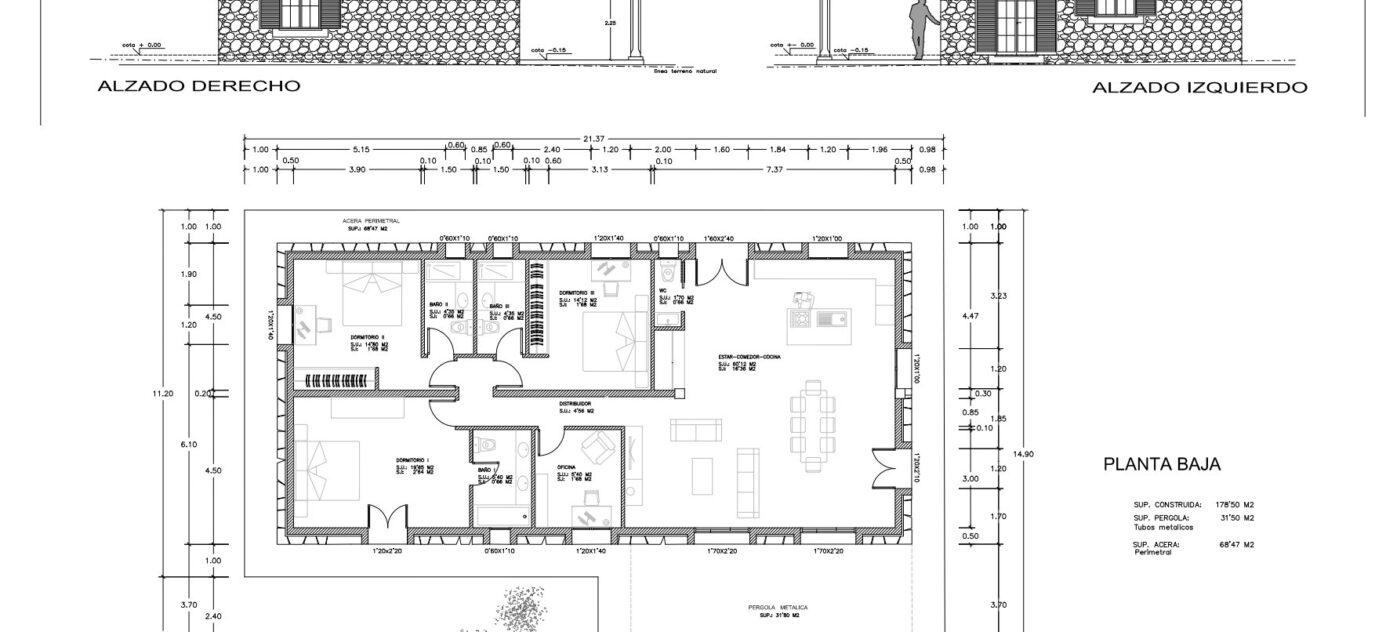
178,50
m.²
3
Habitaciones
3
Baños

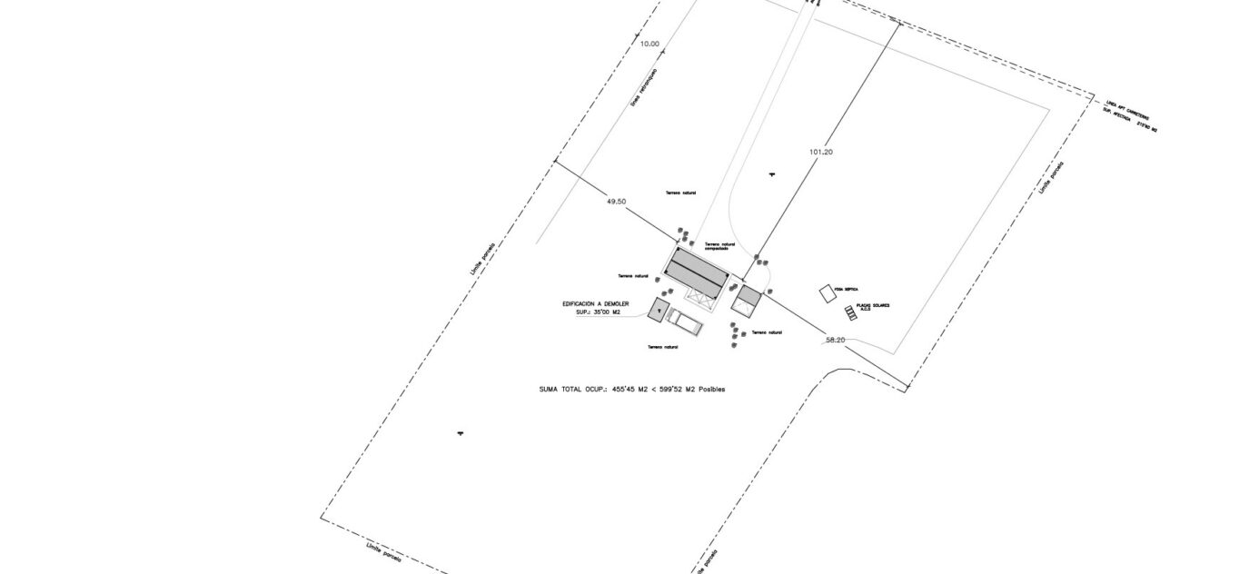
Se ofrece este magnífico terreno rústico situado en la cotizada y tranquila zona de Son Artigues, en el término municipal de Porreres. La parcela cuenta con una generosa superficie de 29.976 m², garantizando una privacidad y un entorno natural excepcionales, característicos del paisaje mallorquín.

El principal atractivo de esta propiedad es que dispone de un proyecto de obra completo, presentado ante el Ayuntamiento en marzo de 2024, lo que agiliza significativamente los plazos para comenzar la construcción de la vivienda soñada.

El proyecto contempla una moderna y funcional vivienda unifamiliar de 178,50 m² de superficie construida. La distribución proyectada incluye:

  • Un espacioso salón-comedor con cocina integrada (tipo open concept), creando un núcleo central diáfano y luminoso.

  • 3 amplios dormitorios.

  • 3 baños completos en suite y 1 aseo de cortesía en la zona de la sala-comedor.

  • 1 estancia ideal para zona de trabajo / despacho o zona de ocio.

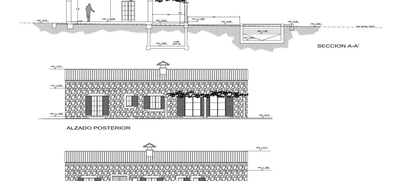
En el exterior, el proyecto se complementa con elementos esenciales para el disfrute del clima mediterráneo:

  • Una piscina de 32 m².

  • Un amplio garaje independiente de 61 m², con espacio suficiente para vehículos y almacenamiento adicional.

Un punto clave del diseño es su flexibilidad: la configuración interior del proyecto actual puede ser modificada y adaptada fácilmente para ajustarse a las necesidades específicas y el estilo de vida de cada familia.

Esta es una excelente oportunidad para inversores o particulares que deseen construir una residencia a medida en una de las zonas rústicas más demandadas del Pla de Mallorca, con la ventaja de un proyecto ya avanzado administrativamente.

Estado
Necesita reforma
Ubicación
Las afueras
Vistas
A la montaña
m² Parcela
29976
Extras
Aseo, Lavandería, Terraza, Garaje, Jardín, Piscina, Trastero
Certificado energético
En trámite


Global Ankat

Revisiones (0)
Global Ankat
Plaça Pax, 24, local 2, 07200 Felanitx, Mallorca





    Esta web usa Cookies para mejorar tu experiencia de usuario. We are committed to protecting your privacy and ensuring your data is handled in compliance with the General Data Protection Regulation (GDPR).